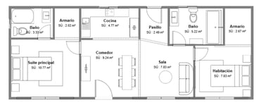
PLANO EN PLANTA
Paneles SIP para proyectos personalizados y eficientes.
Contacto
proyectos@panelchile.com
+56 9 20662344
© 2025. All rights reserved.